Repräsentatives Büro in der Friedrichstraße

Objektart

Gewerbeimmobilien


Details

Ort
Berlin
PLZ
10117
Objektnummer
A3030
Baujahr
1900
Kaltmiete
5.160,00 EUR
Nebenkosten
530,00 EUR
Warmmiete
5.690,00 EUR
verfügbar ab
nach Absprache

Flächen

Etage
2
Gesamtfläche
198,47 m²
Bürofläche
198,47 m²
Anzahl Zimmer
7

Austattung

Personenfahrstuhl
Ja
Gas
Ja
Parkett
Ja
Fliesen
Ja

Objektbeschreibung

Das fünfgeschossige Wohn- und Geschäftshaus mit schöner Stuckfassade ist Anfang des 20. Jahrhunderts entstanden. Der exponierten Lage an der Friedrichstraße entsprechend, erfolgte 2008 aufwändig und mit viel Liebe zum Detail eine Komplettsanierung und Modernisierung des Gebäudekomplexes. Das Vorderhaus, zwei Seitenflügel und das Gartenhaus bilden eine harmonische Einheit, darin eingebettet befindet sich ein kleiner, schön angelegter Innenhof. Im Erdgeschoss des Vorderhauses sind zwei attraktive Ladenflächen mit großzügigen Lager-flächen im Unterge-schoss vorhanden, im 1. bis 3. Obergeschoss sämtlicher Gebäudeteile schöne Büroflächen. In den darüberliegenden Etagen befinden sich sehr großzügige und moderne Wohnungen, die keine Wünsche offen lassen.

Ausstattung

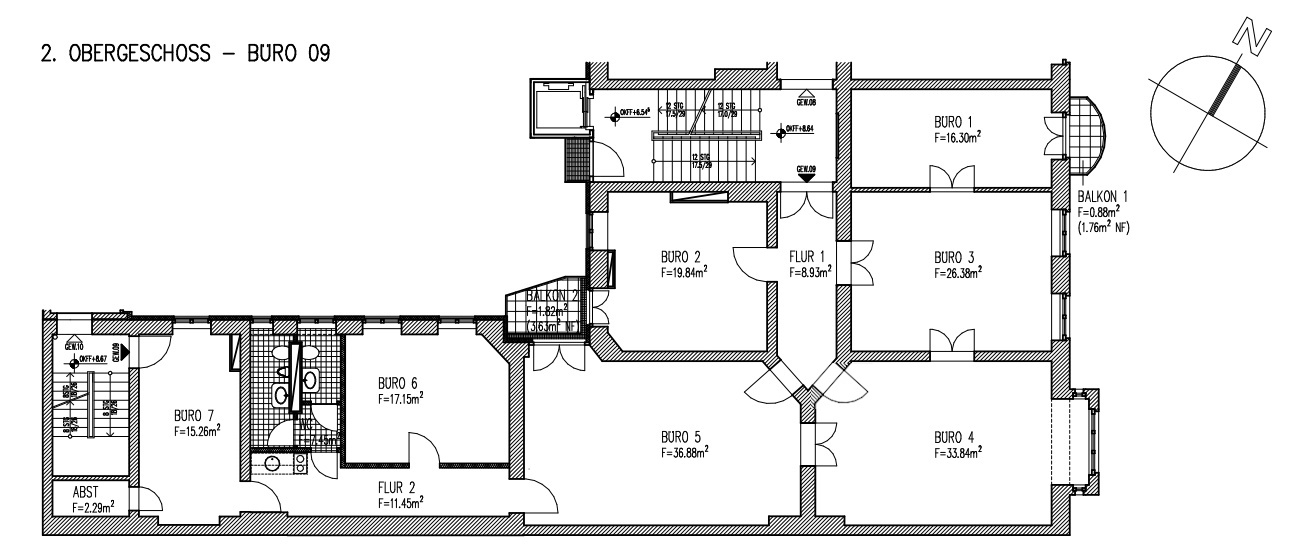
Das Haus erschließt sich dem Besucher durch einen repräsentativen Eingangsbereich. Sämtliche Büroflächen sind über aufwändig hergerichtete Treppenhäuser und im Vorderhaus darüber hinaus bequem mittels Aufzug erreichbar. Die angebotene, großzügige Bürofläche liegt im 2. Obergeschoss des Vorderhauses und geht in den Seitenflügel über. Eine attraktive Raumhöhe von cirka 3,50 m, Stuckdecken, hochwertige Holzvertäfelungen an den Wänden sowie doppelflüglige Zimmertüren unterstreichen den vielfach nachgefragten altbautypischen Charakter der Fläche. Große, isolierverglaste Fensterflächen bringen viel Licht in die Büroräume, die mit hochwertigem Parkettboden ausgelegt sind. Dem Mieter stehen eine Pantryküche, ein praktischer Abstellraum sowie zwei getrennte WC-Bereiche zur Verfügung. Im Sanitärbereich bilden weiße Wandfliesen einen attraktiven Farbkontrast zum schwarzen Granitboden. Zwei kleine Balkone, zur Straße bzw. dem ruhigen Innenhof ausgerichtet, machen das Angebot komplett. Die Beheizung der Einheit erfolgt über eine moderne Heizung mit Wärmepumpen. Dadurch ist auf lange Sicht eine hohe Energieeffizienz gegeben, die dem Mieter in Form minimierter Heizkosten zugute kommt.

Lage

Der Gebäudekomplex befindet sich in zentraler Lage von Stadtmitte in der Friedrichstraße - vis á vis dem Friedrichstadtpalast. Nicht zuletzt das historische Umfeld mit Hackeschem Markt, Museumsinsel, Gendarmenmarkt, Zeughaus und Brandenburger Tor lässt die Friedrichstraße zu einer bevorzugten Wohn- und Geschäftsadresse werden. Sämtliche Einrichtungen des Bundes-tages, der Reichstag mit den Luisen- und Alsenblöcken, das Bundeskanzleramt, das Pressehaus, die Studios und Büros der nationalen und internationalen Fernsehanstalten sowie verschiedene Ministerien und Botschaften sind zu Fuss erreichbar. Auf kurzem Wege gelangt man zum U-Bahnhof Oranienburger Tor (U 6) sowie zum S-Bahnhof Oranienburger Straße (S1, S2, S25), die für eine gute Nord-Süd-Verbindung innerhalb des öffentlichen Nahverkehrsnetzes sorgen. Auch der U-, S- und Regionalbahnhof Friedrichstraße, der mit den S-Bahnlinien 5, 7, 9 und 75 eine schnelle Ost-West-Verbindung schafft, ist in cirka 3 Gehminuten erreichbar.

Energieausweis

  • Befeuerung
    Gas
  • Wesentliche Energieträger
    Gas
  • Energiepasstyp
    Verbrauch
  • Baujahr
    1900
  • Mit Warmwasser
    Ja
  • Gültig bis
    25.09.2034
  • Ausstelldatum
    26.09.2024
  • Gebäudeart
    nichtwohn
  • Energieverbrauchskennwert
    92 kWh/(m²*a)
  • Energieeffizienzklasse
    C
    • A+
    • A
    • B
    • C
    • D
    • E
    • F
    • G
    • H
    0 25 50 75 100 125 150 175 200 225 >250

    Ansprechpartner

    Herr
    Oliver, Korn
    Tel.: 03028449650

    Weitere Objektbilder

    Ihre Anfrage

    Weitere Informationen finden Sie in unserer Datenschutzerklärung.